欢迎进入连云港工人网,本站为您开启港城装修新模式!好工人,好品质!
设为首页
|
收藏本站
|
网站首页
本站简介
新闻动态
服务工种
材料集结
经典案例
联系我们
企业简介
企业荣誉
企业文化
企业新闻
新订单
装修工
安装工
维修工
家政服务
辅料集结
本地精品主材
厂家直供主材
家庭装修案例
公共空间装修
签写留言
查看留言
您所在的位置:首页 > 关于工人网 > 家庭装修案例
经典案例
家庭装修案例
公共空间装修
金鹰秋枫苑5#柳总134平大包16800…
2024/5/20
西小区旧房改造62平大包五万三
2024/5/13
云悦星宸6#155平候李总家半包750…
2024/5/13
金鹰秋枫苑5#黄先生家155平大包2…
2024/4/25
东方领袖大厦1505,32平,大包叁万…
2024/4/21
东方领袖大厦1506,35平,大包叁万…
2024/4/21
明悦天骄6#胡先生家118平半包720…
2024/3/15
开发小区王先生家旧房改造135平大…
2024/3/15
秀逸苏杭沈女士家128平大包15800…
2024/3/1
云悦星辰孙女士家152平大包17200…
2024/2/18
家庭装修案例
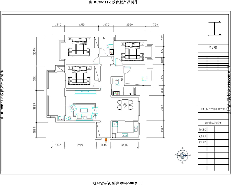
东方瑞园12#东西户型
平面方案一
平面方案二
顶面布置图
客餐厅走道效果图
上一条:
东方瑞园12#中户
下一条:
凤凰名都4#
【返回上页】
电 话: 13775582865(杨经理)13611559965(李经理)
地 址: 连云港市新浦区人民路68号宝安大厦一楼(火车站对面月星家居一楼西侧) 邮 箱: 348586006@qq.com
连云港工人网 版权所有 |
信通网络
-
连云港网络公司
技术支持
[管理]
苏ICP备2020065058号
友情链接:
连云港工人网
连云港网络公司